Fotos Steps to Berns Best Historic Sites!
Bern - 76 Münstergasse
Set in the centre of Bern, Steps to Berns Best Historic Sites! offers accommodation with free WiFi in a historic building. The property features city andcourtyard views, and is 200 metres from Münster Cathedral. Private parking can be arranged at an extra charge.
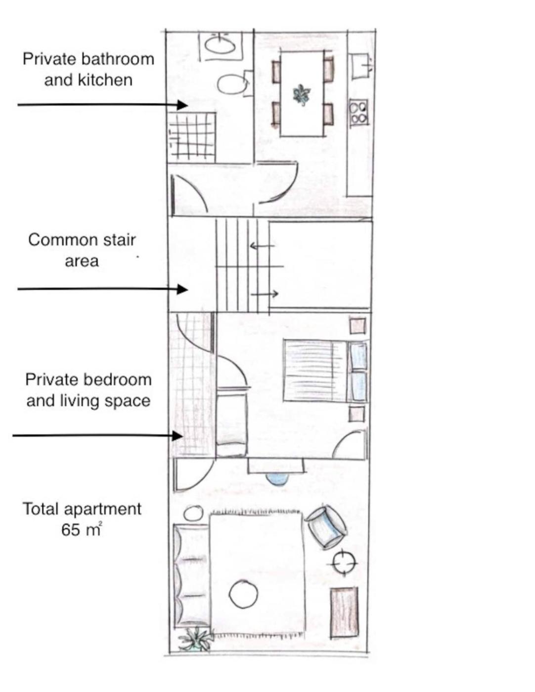
The spacious apartment has 1 bedroom, a flat-screen TV with streaming services, a fully equipped kitchen with a dishwasher and an oven, a washing machine, and 1 bathroom with a walk-in shower. For added privacy, the accommodation features a private entrance.
Popular points of interest near the apartment include House of Parliament Bern, Bern railway station and University of Bern.
The hotel day starts from hour 15:00 and ends at 10:00.
No commercialbusiness meetings can be conducted in the apartment as they are residential apartments only.
Additional guests must be approved by host.This property will not accommodate hen, stag or similar parties.
Managed by a private host
One-Bedroom Apartment. The apartment features a seating area, a dining area, as well as a shared bathroom boasting a walk-in shower and a hairdryer. In the fully equipped kitchen, guests will find a stovetop, a refrigerator, a dishwasher and kitchenware. The spacious apartment offers a flat-screen TV with streaming services, a washing machine, a private entrance, a tea and coffee maker as well as city views. The unit has 4 beds.
Weitere Informationen zum Angebot Schweiz - Bern - Steps to Berns Best Historic Sites!, Meinungen von Urlaubern sowie verfügbare Termine finden Sie auf der Website unser Partner.
Jetzt buchen
Das Angebot unseres Partners: Booking.com BG.764624









